Create Your First Project
Start adding your projects to your portfolio. Click on "Manage Projects" to get started
büro- und lagerfläche
Datum
2017
Projektart:
interior design LPH 5
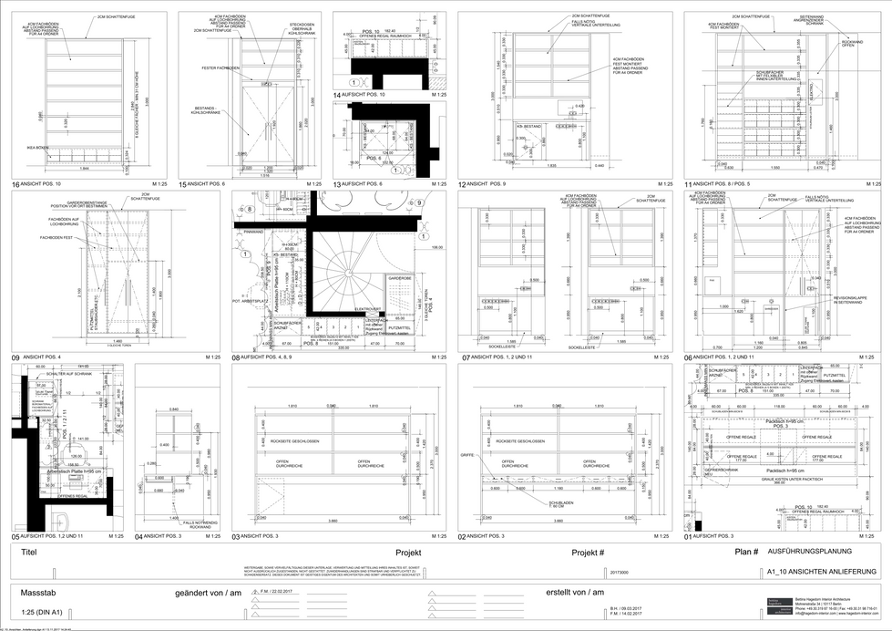
Dieses Innenarchitekturprojekt optimierte die Lager- und Büroflächen einer Apotheke mit maßgeschneiderten Lösungen. Nach einer Bestandsaufnahme und präzisem Aufmaß folgte die Ausführungsplanung der Einbaumöbel, um eine effiziente Lagerorganisation und ergonomische Arbeitsplätze zu schaffen.
Eine durchdachte Lichtplanung kombiniert direkte und indirekte Beleuchtung für eine angenehme, blendfreie Arbeitsatmosphäre. Das Ergebnis: eine funktionale, moderne Umgebung, die Arbeitsabläufe optimiert und den Komfort steigert.
Dieses Projekt habe ich während meiner Anstellung bei Hagedorn Interior betreut.
Die Bildrechte liegen bei David Nassim.

















